Árskógssandur – ný íbúðabyggð

Árskógssandur – ný íbúðabyggð

Sveitarstjórn Dalvíkurbyggðar kynnir drög tillögu að breytingu á Aðalskipulagi Dalvíkurbyggðar 2008-2020 skv. 2.mgr. 30.gr. skipulagslaga nr. 123/2010.

Breytingin felst í því að íbúðarsvæði 706-ÍB er stækkað um 3,7 ha fyrir nýja íbúðabyggð. Jafnframt eru þéttbýlismörk útvíkkuð þannig að þau nái yfir núverandi lóðir sunnan og austan Aðalbrautar meðfram bökkum Þorvaldsdalsár.
Aðalskipulagsuppdrátt má sjá hér.
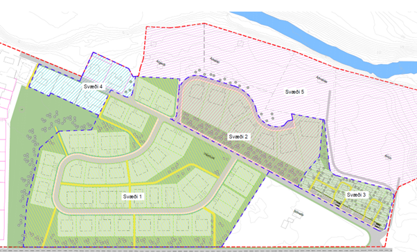
Samhliða eru kynnt drög að tillögu að deiliskipulagi fyrir nýtt íbúðarsvæði skv. 3.mgr. 40.gr. skipulagslaga.
Meginmarkmið deiliskipulagstillögunnar er uppbygging íbúðarhúsnæðis á Árskógssandi. Íbúðabyggðinni er skipt í þrjú svæði fyrir blandaða byggð, stór einbýlishús og smáíbúðabyggð.
Deiliskipulagstillöguna má sjá hér. og greinargerð hér .
Skipulagsuppdrætti ásamt greinargerð má jafnframt nálgast í Ráðhúsi Dalvíkur frá 22.maí til 5.júní 2025 og á Skipulagsgátt: skipulagsgatt.is undir málum nr. 84/2024 og 692/2025.
Ábendingum þar sem nafn, kennitala og heimilisfang sendanda kemur fram má skila á netfangið dalvikurbyggd@dalvikurbyggd.is, bréfleiðis til Framkvæmdasviðs, Ráðhúsi, 620 Dalvík eða í gegnum Skipulagsgátt.

Frestur til að koma á framfæri ábendingum við skipulagstillögurnar er veittur til 5.júní 2025.

Skipulagsfulltrúi