Íbúðarsvæði vestan Böggvisbrautar
Breyting á aðalskipulagi og nýtt deiliskipulag
Sveitarstjórn Dalvíkurbyggðar auglýsir tillögu að breytingu á Aðalskipulagi Dalvíkurbyggðar 2008-2020 skv. 31.gr. skipulagslaga nr. 123/2010.
Breytingin tekur til svæðis sem merkt er ÍB-202 í aðalskipulagi og felst í að svæðið er stækkað um 1,3 ha suður fyrir vegslóða að Böggvisdal.
Aðalskipulagsuppdrátt má sjá hér.

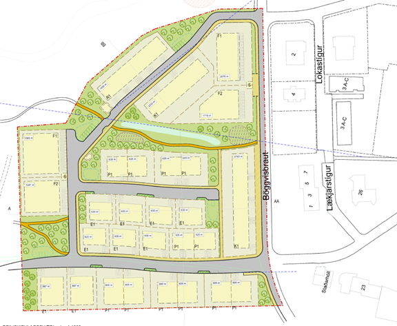
Samhliða er auglýst tillaga að deiliskipulagi fyrir nýtt íbúðarsvæði skv. 41.gr. skipulagslaga.
Deiliskipulagstillagan gerir ráð fyrir nýrri íbúðarbyggð með allt að 65 íbúðum í eins til þriggja hæða húsum, þ.e. einbýlis-, fjölbýlis-, par-, rað- og keðjuhúsum. Lögð verður áhersla á gott aðgengi svæðisins með öruggum gönguleiðum, haganlega staðsetningu íbúðarhúsa m.t.t. skjóls og birtu og blágrænar ofanvatnslausnir.
Deiliskipulagsgögn má sjá greinargerð, Böggvisbraut afrennsli, Böggvisbraut skýringarmynd, Böggvisbraut skýringarmynd 2
Skipulagsuppdrætti ásamt greinargerð má nálgast í Ráðhúsi Dalvíkur frá 21.nóvember 2025 til 12.janúar 2026 og á Skipulagsgátt: skipulagsgatt.is undir málum nr. 81/2024 og 479/2025.
Athugasemdum þar sem nafn, kennitala og heimilisfang sendanda kemur fram má skila á netfangið dalvikurbyggd@dalvikurbyggd.is, bréfleiðis til Framkvæmdasviðs, Ráðhúsi, 620 Dalvík eða í gegnum Skipulagsgátt.
Frestur til að koma á framfæri athugasemdum við skipulagstillögurnar er veittur til 12.janúar 2026.
Skipulagsfulltrúi